Tavole di figure semplici

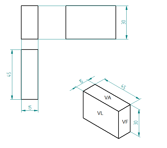
Riporto di seguito una serie di tavole di base per capire come realizzare le protezioni ortogonali. Sono tutte figure geometriche semplici che permettono di avere una visione generale del metodo.

Tavola 1

Tavola 2

Tavola 3

Tavola 4